Reutlingen soll um 360 Wohnungen in der Nähe des Zentrums wachsen

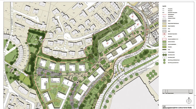
Eine Reihe von maximal fünfgeschossigen Gebäudekomplexen will die GWG auf den »Schieferterrassen« errichten: Die Justinus-Kerner-Straße erhält eine neue Anbindung an die Schieferstraße. GRAFIK: STADT
Lorem ipsum dolor sit amet, consetetur sadipscing elitr, sed diam nonumy eirmod tempor invidunt ut labore et dolore magna aliquyam erat, sed diam voluptua. At vero eos et accusam et justo duo dolores et ea rebum.